CASA CTZ
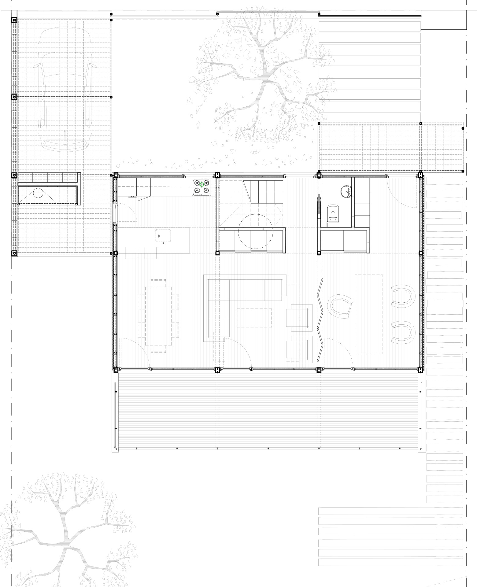
La casa CTZ forma parte de un conjunto de exploraciones proyectuales sistemáticas, en la que se busca construir arquitectura y paisaje de manera simultánea. La topografía accidentada, en este caso, es protagonista de las acciones proyectuales básicas de la propuesta, que, por medio de una retícula estructural precisa define dos cuerpos edilicios diferenciados material y programáticamente. Un basamento pesado, de piedra, toma los desniveles, ofreciendo cobijo y protección a las áreas de noche. Por otro lado, una estructura liviana de vidrio, metal y madera conformar un volumen superior, que aprovecha las miradas largas al paisaje circundante, donde se alojan las áreas de día vinculadas a los accesos desde la calle. De esta manera, dos técnicas constructivas distintas se conjugan para construir un proyecto que se tensiona y dialoga con el sitio, sacando provecho de una condición topográfica y construyendo una estructura de relaciones nuevas, pregnadas de identidad propia, edificio y lugar se compenetrar convirtiéndose así, en un paisaje nuevo.
LOCALIZACIÓN
Aluminé, Neuquén
EQUIPO
Javier Gatica
Rocio de la Fuente.
AÑO
2019
PROGRAMA
Vivienda unifamiliar
ESCALA
175 m²





